Description
Modification of the H-shaped container house model into an enlarged H-shaped layout with an additional floor.
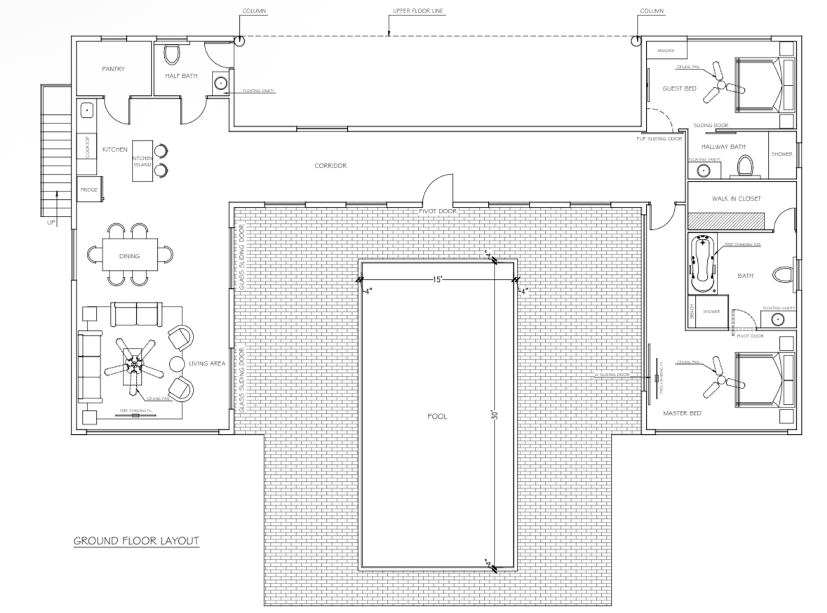
This project consists of redesigning the original H-shaped container house into a wider and more spacious configuration, while adding a full second level. The new design improves interior circulation, increases usable floor area, and enhances overall comfort and functionality.
The project is delivered as a fully detailed architectural design, optimized for container construction and ready for further customization according to client needs. In addition to the technical documentation, high-quality 3D interior visualizations are included to help the client better understand the spaces, layouts, and overall ambiance of the project.
The client will receive the following plans and documents:
Floor and roof plan
Section
Elevation plan
Floor plan
Surface plan
Electrical plan
Plumbing plan
Foundation plan
High-quality 3D interior visualizations



